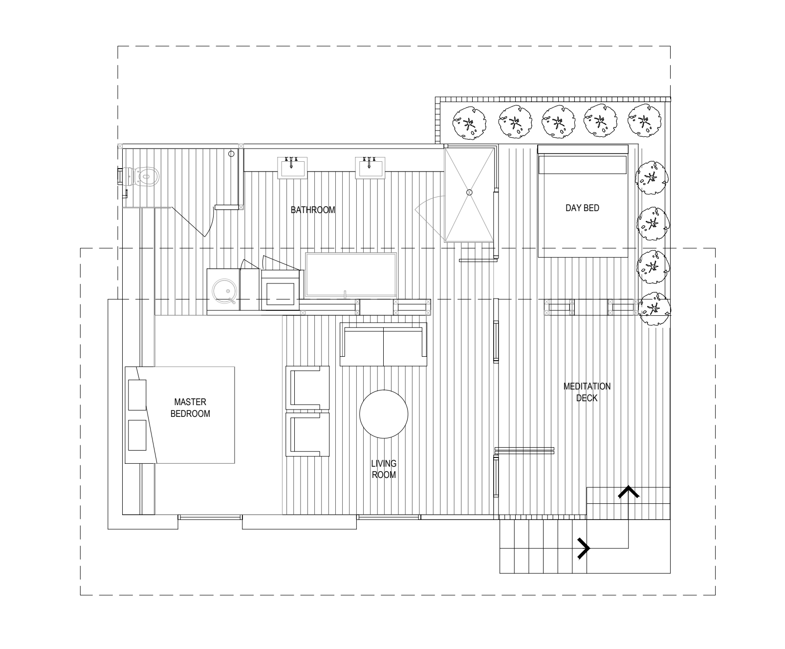
Meditation Villas
Within Gwinganna’s orchard lie three premium Meditation Villas, custom designed to help you focus on mindfulness. With soft colours, a spacious open plan design and plenty of natural light the suites have a serene outlook and enhancements for meditation and yoga practice in your private oasis.

Features

Open Plan Design

King Size Bed

Bath & Shower

Private Deck

Private Laundry
